2026.2月
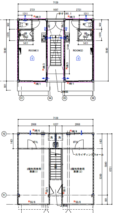
JR高崎線 桶川駅から車で8分。桶川加納インターも近いです。建物の前に駐車場スペースがありますので作業をするのにも大変便利です。設備や内装にもこだわっています。各部屋ごとに屋外の専用駐車場が用意されていますので1階を収納スペースとしても利用できます。コンテナを使った目立つ外観もおすすめです。
・顔認証スマートキー
・NSシリーズのシャワーユニット
・55TVモニター搭載
・洗濯乾燥機内蔵
・キッチン、洗面スタイリッシュ
・フロアもカッコよくしました
・事務所として利用可能!
※前面1台駐車可
・保証会社要加入
・火災保険加入必要

















